2025年08月12日 14:59:03 来源:上海戎钛阀门制造有限公司 >> 进入该公司展台 阅读量:11
硬密封保温三通球阀的产品资料及用途
硬密封保温三通球阀BQ45H夹套保温三通球阀/硬密封T型三通保温球阀/BQ44H硬密封L型三通保温球阀/BQ45F软密封三通保温球阀/硬密封不锈钢保温三通球阀/硬密封三通保温球阀具有良好的保温、保冷特性,且阀门的通径与管径一致,同时又能有效降低管路中介质热量损失。三通保温球阀有T型和L型。T型三通保温球阀能使三条正交的管道相互联通和切断第三条通道,起分流、合流作用。L型三通保温球阀只能连接相互正交的两条管道,不能同时保持第三条管道的相互连通,只起到分配作用。主要用于石油、化工、冶金、制药、食品等各类系统中,以输送常温下会凝固的高粘度介质。
结构特点:
1、三通保温球阀有两阀座密封T型结构和四阀座密封T型结构两种,用户可根据工况实际情况选择类型 。
2、三通球阀一般采用两阀座密封结构,如需四阀座的密封结构,应注明阀座类型 。
3、该三通球阀具有造型美观,结构紧凑合理,它不仅可实现介质流向的切换,也可使三个通道相互连通,同时也可关闭任通道,使另外两个通道连通,灵活控制管路中介质的合流与分流 。
4、特别适合于石油、化工、冶金、制药、食品等各类系统中输送常温下会凝固的高粘度介质,防止介质结晶。
产品特点:
1、BQ44F/BQ45F夹套保温三通球阀是采用整体式结构,所以比一般球阀更小,重量也更轻,并且不会外漏,密封性能良好,外形美观。
2、不锈钢保温三通球阀具有良好的保温、保冷的特性。
3、夹套保温三通球阀具有良好的保温、保冷特性,且的通径与管径一致,同时又能有效降低管路中介质热量损失。
4、主要用于石油、化工、冶金、制药、食品等各类系统中,以输送常温下会凝固的高粘度介质。
5、夹套保温三通球阀不仅可实现介质流向的切换,也可使三个通道相互连通,同时也可关闭任通道,使另外两个通道连通,灵活控制管路中介质的合流分流。
6、两阀座密封三通球阀具有结构紧凑、外型美观、密封性能好。它能实现对管道中介质流向的切换,也能使相互垂直的两个通道连通或关闭。
7、四阀座密封三通球阀具有造型美观,结构紧凑合理,它不仅可实现介质流向的切换,也可使三个通道相互连通,同时也可关闭任通道,使另外两个通道连通,灵活控制管路中介质的合流分流。
8、夹套保温三通球阀在石油、天然气、煤炭和矿石的开采、提炼加工和管道输送系统中;在化工产品、医药和食品生产中;在水电、火电和核电的电力生产系统中;在城市和工业企业的给排水、供热、和供气系统中;在农田的排灌系统中;在冶金生产系统中得以广泛的应用。
型号编制:(BQ44F/BQ45F)
B | Q | 3 | 4 | 4 | F | -16 | P |
附属 | 阀门类型 | 动作方式 | 连接方式 | 阀门结构 | 密封材料 | 公称压力 | 阀体材质 |
B:保温 | Q:球阀 | 3:涡轮 | 4:法兰 | 4:L型三通 | F:聚四氟乙烯 | 16=1.6MPa | C:碳钢 |
- | - | 无:手柄 | - | 5:T型三通 | PPL:对位聚苯 | 25=2.5MPa | P:不锈钢304 |
- | - | - | - | 2:Y型三通 | H:硬密封 | 40=4.0MPa | R:不锈钢316 |
主要零件部件材料表:
序号 | 零件名称 | 材料名称 | ||||
1 | 阀体 | WCB | CF8 | CF3 | CF8M | CF3M |
2 | 球体 | 2Cr13 | 304 | 304L | 316 | 316L |
3 | 阀座 | 聚四氟乙烯PTFE | ||||
4 | 阀杆 | 2Cr13 | 304 | 304L | 316 | 316L |
5 | 填料 | V型聚四氟乙烯、柔性石墨环、聚四氟乙烯片、柔性石墨复合垫 | ||||
6 | 密封圈 | 聚四氟乙烯PTFE、对位聚苯PPL | ||||
7 | 垫圈 | V型聚四氟乙烯、柔性石墨环、聚四氟乙烯片、柔性石墨复合垫 | ||||
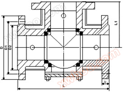
主要外形尺寸表:
公称压力 PN(MPa) | 公称通径 DN(mm) | 尺寸(mm) | |||||||
L | L1 | D | D1 | D2 | b | f | Z-φd | ||
1.6 | 15 | 150 | 72 | 95 | 65 | 45 | 14 | 2 | 4-φ14 |
20 | 160 | 80 | 105 | 75 | 55 | 14 | 2 | 4-φ14 | |
25 | 180 | 90 | 115 | 85 | 65 | 14 | 2 | 4-φ14 | |
32 | 200 | 100 | 135 | 100 | 78 | 16 | 2 | 4-φ18 | |
40 | 220 | 110 | 145 | 110 | 85 | 16 | 3 | 4-φ18 | |
50 | 240 | 120 | 160 | 125 | 100 | 16 | 3 | 4-φ18 | |
65 | 260 | 130 | 180 | 145 | 120 | 18 | 3 | 4-φ18 | |
80 | 280 | 140 | 195 | 160 | 135 | 20 | 3 | 8-φ18 | |
100 | 320 | 160 | 215 | 180 | 155 | 20 | 3 | 8-φ18 | |
125 | 380 | 190 | 245 | 210 | 185 | 22 | 3 | 8-φ18 | |
150 | 440 | 220 | 280 | 240 | 210 | 24 | 3 | 8-φ23 | |
200 | 550 | 260 | 335 | 295 | 265 | 26 | 3 | 8-φ23 | |
250 | 670 | 310 | 405 | 355 | 320 | 30 | 3 | 12-φ25 | |
300 | 720 | 370 | 460 | 410 | 375 | 30 | 3 | 12-φ25 | |
主要性能参数表:
适用温度 | -28℃~ +300℃ |
法兰尺寸 | JB79-59、GB9113、SH3406、HG20592-2009、ANSI B16.5、JIS B2212 |
检验和试验 | GB/T13927-89、JB/T9092-99 |
其余制造规范均按本厂标准 | |
主要结构图:




